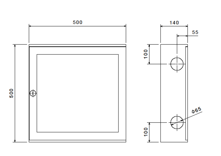
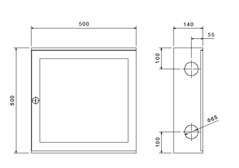
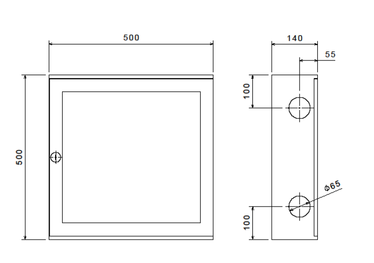
Cutie hidrant PYR 2" - 500x500x140 rosie cu usa cu sticla, deschidere 170 grade, sistem complet, furtun plat, fara tambur, D-170 (TOD)
Durata de livrare: 24 - 72 ore
| Caracteristici tehnice hidrant | |
| Duza teava refulare | 13 mm |
| Caracteristici pentru functionare cu jet | |
| Presiune 1 | 20 bar |
| Debit (la p=2 bar) | 142.8 litri/min |
| Presiune 2 | 40 bar |
| Debit (la p=4 bar) | 196.9 litri/min |
| Presiune 3 | 60 bar |
| Debit (la p=6 bar) | 236.8 litri/min |
| Caracteristici pentru functionare cu spray | |
| Presiune 1 | 20 bar |
| Debit (la p=2 bar) | 159.6 litri/min |
| Presiune 2 | 40 bar |
| Debit (la p=4 bar) | 220.2 litri/min |
| Presiune 3 | 60 bar |
| Debit (la p=6 bar) | 269.9 litri/min |
Momentan, informatiile despre siguranta produsului nu sunt disponibile.
Momentan, informatiile despre producator nu sunt disponibile.
Momentan, informatiile despre persoana responsabila nu sunt disponibile.
Produse Alternative
Frecvent cumparate impreuna
Ultimele produse vizualizate
Newsletter Nu rata ofertele si promotiile noastre
Compara produse
Trebuie sa mai adaugi cel putin un produs pentru a compara produse.
A fost adaugat la favorite!
A fost sters din favorite!
