
Durata de livrare: 7 - 14 zile
Combustie controlata in aspirare
Ceea ce diferentiaza Granola automatica de catre centralele traditionale cu peleti, este tehnologia in aspirare pe care o foloseste. Camera de ardere, conducta de alimentare si tot traseul fumului sunt de fapt in depresiune intrucat ventilatorul pus pe evacuare lucreaza in aspiratie. De fapt este garantata o functionare in siguranta intrucat in cazul unei accidentale lipse de etansare a garniturilor, va fi o aspirare de aer si niciodata o iesire a flacarii.

Date tehnice
§ Camp de putere: 40÷115 kW;
§ Putere utila recomandata: 90 kW;
§ Randament: > 90%;
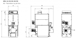
§ Dimensiuni de gabarit totale (inclus buncarul superior):
· Lungime 1766 mm.;
· Largime: 862 mm.;
· Inaltime (inclus panoul de comanda): 1542 mm.;
§ Greutate: 560 kg.;
§ Buncarul peletilor extern (standard): Larg. 700 mm; Prof. 700 mm; Inal. 1500mm.;
§ Capacitate buncarul peletilor: 300 kg.;
§ Continut de apa in centrala: 276 litri.;
§ Racord cos: Ø 200 mm.;
§ Presiune maxima de exercitiu: 3 bar.;
§ Presiune de proba: 4,5 bar.
Nota:
Centrala GRANOLA AUTOMATA este conform normei UNI EN 303.5 2004. Clasa de prestare 5 si indeplineste cerinte minime de prestare si limite de emisii prevazute de norma UNI EN 303.5 2012 in clasa 5.
Putere termica (kW): 115
Gama puterii termice (kW): 100 - 125
Tip combustibil: Peleti
Tip ardere cazan: Ardere clasica
Material cazan: Otel