⌚ LUNI - VINERI 9.00 - 17.00

ATTACK Cazan pe lemne ATTACK cu gazeificare, model DPX 35 Profi 35 kw

ATTACK
15.225,00 RON
TVA inclus
 

PRODUS ACHIZITIONABIL PRIN S.E.A.P.

Click pentru detalii 
In stoc

Durata de livrare: 3 - 5 zile

Limita stoc
Adauga in cos
Cod Produs: 35DPXP Ai nevoie de ajutor? 0373.760.413
Adauga la Favorite Cere informatii Comanda rapida
  • Descriere
  • Caracteristici
  • Download (1)
  • Review-uri (0)
Centrala termica pe combustibil solid cu gazeificare, 35 Kw, Attack DPX 35 Profi

ü Noua serie de cazane ATTACK DPX sunt echipate cu un schimbator de caldura tubular foarte eficient gaze arse-apa. In schimbator sunt montate turbulatori mobili speciali, care servesc pentru a impiedica crearea de curgere turbulenta si ardere prin schimbatorul de caldura, si prin aceasta realizeaza transferul de caldura mai mare prin peretele de otel al schimbatorului in apa de incalzire.
ü In acelasi timp turbulatori servesc pentru curatarea schimbatorului, il mentin curat si acesta atinge parametrii de operare cei mai eficienti – eficienta ridicata. Din punct de vedere tehnic este vorba de gama de cazane cu eficienta ridicata, temperatura scazuta ale gazelor arse si cu un proces de ardere cel mai eficient. Randamentul cazanului ATTACK DPX este pana la 90 %.
ü Prin instalarea cazanului mai eficient din seria ATTACK DPX se reduc semnificativ costurile de operare, reflectate in economia de combustibil comparativ cu randamentul mai mic al cazanului pe arderea aceluiasi tip de combustibil.
ü Din punct de vedere al intregii societati este vorba de o sursa ecologica care arde biomasa lemnoasa si care este un combustibil neutru CO2. Din punctul de vedere al productiei de emisii nocive in timpul functionarii la versiunea LAMBDA, concentratia medie atinsa al CO in gazele arse este la nivelul sub 200 mg/m3 convertita in 10% O2. Conform normei europene in vigoare EN303-5, conform careia cazanele sunt clasificate in cazane pe combustibil solid dupa randament si al productiei de emisii nocive in diferite clase, cazanul ATTACK DPX (versiunea LAMBDA) atinge in clasa cea mai buna, conform acestei norme, de 25 de ori mai putin concentratia emisiilor nocive a CO, decat limita stabilita!
ü Cazanul cu gazeificare "ATTACK DP Profi" este controlat de un regulator electronic destinat pentru reglarea temperaturii apei cazanelor pe apa cu arderea lemnelor.
ü  Avantajul versiunii cazanului ATTACK DPX Profi, in comparatie cu versiunea Standard, rezida intr-o utilizare mai confortabila, posibilitatea de reglare a puterii de incalzire cu scopul obtinerii parametrilor cei mai optimi ale arderii lemnelor. Regulatorul de cazan efectueaza tot timpul masuratori ale temperaturii apei si afiseaza aceste valori pe display si in acelasi timp controleaza ventilatorul gazelor arse si pompa sistemului de incalzire centrala.

Caracteristici
· Desing modern atemporal;
· Schimbator de caldura tubular foarte eficient „gaze arse-apa“;
· Eficienta mare de ardere, pana la 90%;
· Consum mic de combustibil, Productie mica al emisiilor si cenusei;
· Gama larga al puterii cazanelor fabricate 15-45kW in trei modificari;
· Posibilitatea controlului arderii cu ajutorul sondei Lambda;
· Ventilatorul de evacuare asigura o ardere uniforma si eficienta si o functionare fara praf;
· Rotatii regulat modulate ale ventilatorului;
· Arderea lemnului de esenta moale si tare;
· Palnia voluminoasa a cazanului, care asigura ardere mai lunga la o incarcare cu combustibil;
· Posibilitatea alimentarii cu bucati mari de lemne;
· Cantitati minime de reziduuri;
· Deservire si curatare simpla;
· Oprire automata a cazanului dupa arderea combustibilului;
· Actionare automata a clapetei de aprindere asociate cu deschiderea si inchiderea usii de ardere;
· Ventilatorul de evacuare asigura o ardere uniforma si eficienta si o functionare fara praf;
· Rotatii regulat modulate ale ventilatorului;
· Echipat cu circuitul de racire pentru prevenirea supraincalzirii apei din cazan;
· La fabricarea cazanului a fost folosit otel de calitate de grosime 6 mm;
· Placile cazanului din beton rezistente la temperaturi de pana la 1350°C;
· Cazanul corespunde criteriilor clasei superioare, conform normei europene EN303-5;
· Cazan de apa calda din otel pe gazeificarea bucatilor de lemn;

· Grosimea tablei in partile de contact cu flacara pana la 6mm;
· Schimbator cu tuburi;
· Curatarea schimbatorului cu ajutorul tulburatorilor;
· Ventilator de evacuare puternic;
· Circuitul de racire integrat;
· Randamentul cazanului 89 - 93%;
· Consum redus de combustibil;
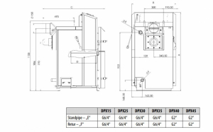
· Latimea 690mm pentru instalarea simpla in sala de cazane a carei usa are latimea de 800mm;
· Lungimea maxima a bustenilor pana la 1 m;
· Evacuatorul gazelor arse pozitional, care permite instalarea cosului de fum in functie de preferintele clientului in directia orizontala sau verticala;
· Conexiune medie la cosul de fum Ø150mm.

ü Cazanul cu gazeificare ATTACKDPX in versiunea Standard, Profi si Lambda este destinat incalzirii economice si ecologice a locuintelor familiale, a cabanelor, pensiunilor, a fabricilor de mici dimensiuni si obiectivelor similare. Combustibilul specificat pentru cazanul ATTACKDP este lemnul uscat. In cazul rezervorului de aprovizionare plin, posibilitatea arderii continue, 8 pana la 12 ore.
ü Cazan cu gazeificare ATTACK DPX este un cazan modern care prin tehnologia sa obtine din lemne maxim si in acelasi timp prin arderea ecologica ocroteste mediul inconjurator. Lemnul este un combustibil popular pentru ca emana o caldura placuta si creste de fapt aproape in fata usii.

Specificatii tehnice
§ Principiul de functionare: gazeificare;
§ Gama de performanta: 14-35 kW;
§ Randament combustibil 1: 90.1%;
§ Clasa eficienta energetica combustibil 1: A+;
§ Temperatura de lucru: 65°C;
§ Presiune de lucru: 2.5 bar;
§ Presiune de proba: 4 bar;
§ Volum de apa din cazan: 110 litri;
§ Volum camera de ardere: 158 litri;
§ Racord tur: 6/4”;
§ Racord retur: 6/4”;
§ Racord gaze arse: 150 mm.;
§ Alimentare electrica: 230V/50 Hz;
§ Combustibil 1: lemn;
§ Consum combustibil: 9.1 Kgh;
§ Material: otel;
§ Inaltime: 1240 mm.;
§ Latime: 700 mm.;
§ Adancime: 1340 mm.;
§ Masa: 460 kg.
Informatii conformitate produs

Putere termica (kW): 35

Gama puterii termice (kW): 25 - 50

Tip combustibil: Lemn

Tip ardere cazan: Cu gazeificare

Material cazan: Otel

Daca doresti sa iti exprimi parerea despre acest produs poti adauga un review.

Review-ul a fost trimis cu succes.

Compara produse

Trebuie sa mai adaugi cel putin un produs pentru a compara produse.

A fost adaugat la favorite!

A fost sters din favorite!