
Durata de livrare: 2 - 4 saptamani
Traseul fumului
Focarul cu flacara intoarsa si efectul iradierii refractarului usii anterioare consimte un grad de pulverizare al particulelor de combustie extrem de ridicat.

| Model | U.M | MK 90 |
| Putere termica nominala | kW | 75÷90,3 |
| Volum camera de combustie | m³ | 0.1 |
| Suprafaţă de schimb | m² | 4.3 |
| Greutate centrală | kg | 300 |
| Volum apa centrală | l | 140 |
| Presiune de operare | bar | 5 |
| Presiune de probă hidraulică | bar | 7.5 |
| Temp. max de funcţionare | °C | 95 |
| Pierderi de presiune circuit apa | mbar | 12 |
| Presiune camera de combustie | mbar | 0.24 |
| Rand. la 100% utilizare | % | 91.3 |
| Randament la 30% | % | 89.3 |
| Racord arzător (Ø) | mm | 150 |
| Racord coş de fum (Ø) | mm | 200 |
| Depresiune min. la coş | mbar | 0.2 |
| Temperatură max fum | °C | 181 |
| Dim. camera comb. Ø x lungime | mm | 390x830 |
| Camp reglare termostat | °C | 55÷80 |
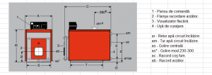
Dimensiuni


Putere termica (kW): 90.3
Gama puterii termice (kW): 75 - 100