⌚ LUNI - VINERI 9.00 - 17.00

PURMO Caseta cu montaj ingropat Purmo SWP 4 (790/700-800/120-170) pentru distribuitor

PURMO
523,96 RON
TVA inclus

PRODUS ACHIZITIONABIL PRIN S.E.A.P.

Click pentru detalii 
 
In stoc

Durata de livrare: 24 - 48 ore

Limita stoc
Adauga in cos
Cod Produs: FBWCFS10A70079P0 Ai nevoie de ajutor? 0373.760.413
Adauga la Favorite Cere informatii Comanda rapida
  • Descriere
  • Caracteristici
  • Review-uri (0)

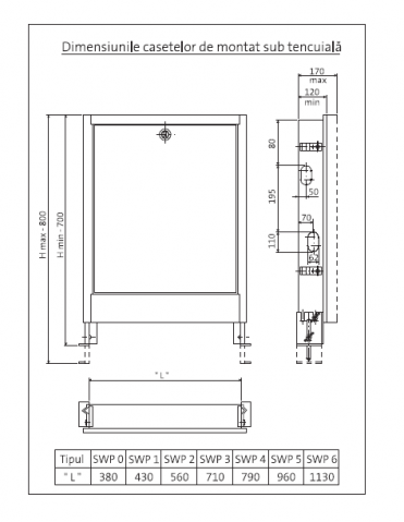
Caseta cu montaj ingropat SWP 4 (790/700-800/120-170) pentru distribuitor PURMO

Distribuitoarele care alimenteaza circuitele de incalzire vor fi amplasate in casete situate de obicei in vestibul, hol sau camera centralei.
Cel mai bine este sa fie localizate central fata de intreaga suprafata a podelei de incalzire. Dimensiunea casetei va trebui adaptata la marimea distribuitorului.

Usile din fata ale casetelor pot fi deschise sau scoase. In podea se recomanda fixarea conductei de incalzire intr-un cot special din material plastic, care indeplineste functia de ghidaj al conductei si permite indoirea acesteia sub un unghi drept. Inaltimea si adancimea casetelor sunt reglabile intr-un interval limitat

Casetele Purmo sunt prevazute cu dispozitive speciale de fixare pentru blocul de conexiuni, care alimenteaza termostatele electrice din camere si capurile termoelectrice in sistemul de reglare a temperaturii in incaperi.
Caseta montaj ingropat al distribuitoarelor / colectoarelor (montate in perete) este fabricata din tabla de otel zincata, posibilitatea de demontare simpla a usitei vopsite si a ramei pe perioada lucrarilor de instalare, tencuire si vopsire, inaltimea si adancimea reglabila.

Caseta cu montaj ingropat SWP 4 (790/700-800/120-170)
Pentru UFH max 10 circuite fără KIT / max 7 circuite cu KIT / pentru max 10 circuite radiatoare
Dimensiune: Lungime 790


ATENTIE! Dimensiunile distribuitoarelor / colectoarelor indicate in paranteze sunt orientative.
                 Pentru a evita greselile, asigurati-va ca dimensiunile casetelor vor fi adecvate pentru distribuitor/colector si dotarea aditionala a acestuia (robineti, sistem contorizare de amestec etc.).

 

Informatii conformitate produs

Inaltime reglabila: 700 - 800 mm

Adancime reglabila: 120 - 170 mm

Latime: 790 mm

Daca doresti sa iti exprimi parerea despre acest produs poti adauga un review.

Review-ul a fost trimis cu succes.

Compara produse

Trebuie sa mai adaugi cel putin un produs pentru a compara produse.

A fost adaugat la favorite!

A fost sters din favorite!