Boiler cu acumulare Ferroli, din otel cu 2 serpentine, rezistenta de 2 kW, model Ecounit HP 400-2C 400 litri
Durata de livrare: 24 - 72 ore
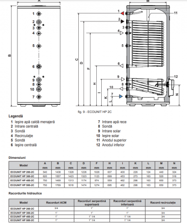
ECOUNIT HP este un boiler vertical pentru stocarea apei calde cu doua serpentine.
Boilerul este proiectat pentru încălzirea apei calde menajere (a.c.m.) la o temperatură sub punctul de fierbere, la presiune atmosferică.
Acesta trebuie conectat la o sursă de energie şi la o instalație pentru preparare apă caldă menajeră, compatibile cu caracteristicile de performanţă şi puterea acestuia.
CARACTERISTICI GENERALE
• Modelul Ecounit HP 2C este echipat cu 2 serpentine oferind posibilitatea de conectare la mai multe surse de încălzire.
• Rezervor din oțel carbon, protejat la interior prin emailare cu tehnologia "Blue Forever"
• Echipat cu rezistență electrică de 2 kW
• Termostat pentru reglarea temperaturii (15°C....75°C)
• Teacă de senzor cu presetupă
• Buton ON-OFF
• Izolație termică rigidă cu grosimea de 50 mm
• Finisaj exterior (gri-metalizat) din tablă de oțel vopsită în câmp electrostatic
• Termometru montat la partea superioară
• Conexiune pentru recirculare a.c.m.
• Anod de magneziu de mari dimensiuni (montat pe flanșă) pentru protecție la coroziune
PRINCIPIU DE FUNCȚIONARE:
Agentul termic circulă prin serpentină și cedează căldura prin transfer termic către apa menajeră.

Serpentine boiler (nr): 2 serpentine
Capacitate boiler (litri): 200 - 500 litri
Manual de instalare si utilizare boiler Ferroli EcoUnit HP
Descarca